Wiring Diagrams
Diagram 150-0:

Diagram 150-1a:

Diagram 150-2:

Diagram 150-3:

Diagram 150-4:

Diagram 150-5:

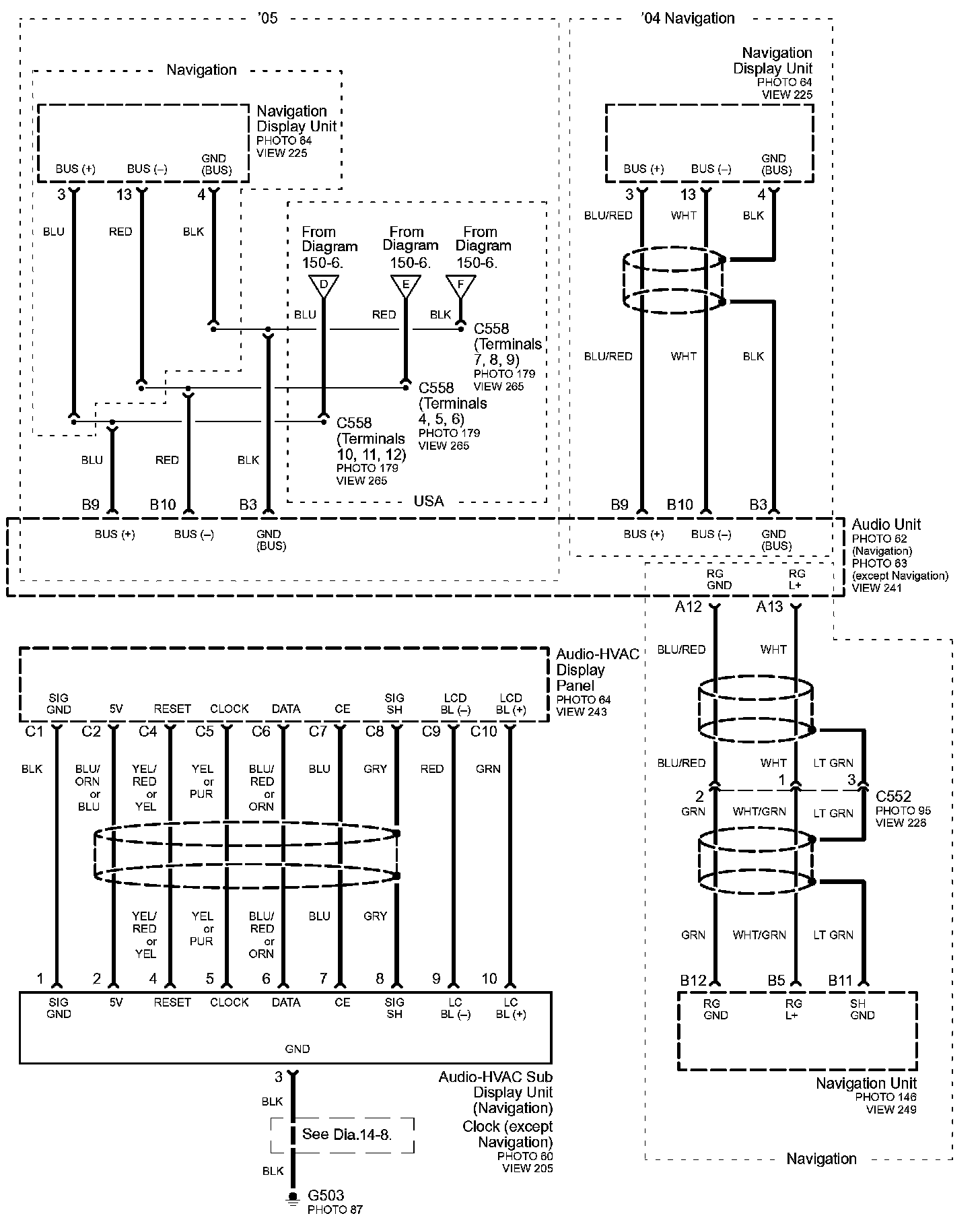
Diagrams: Other diagrams referred to by number (See Diagram ##-#, etc.) within these diagrams can be found at Diagrams by Number. Diagrams By Number
Locations: Location photographs (references to PHOTOS) referred to within these diagrams can be found at Locations by Photo Number. Locations By Photo Number
Connector Views: Connector terminal views (references to VIEWS) referred to within these diagrams can be found at Connector Views by View Number. Connector Views By View Number