Operation CHARM
: Car repair manuals for everyone.
Home
>>
Acura
>>
2004
>>
TSX L4-2.4L
>>
Repair and Diagnosis
>>
Body and Frame
>>
Sound Proofing / Insulation
>>
Locations
>>
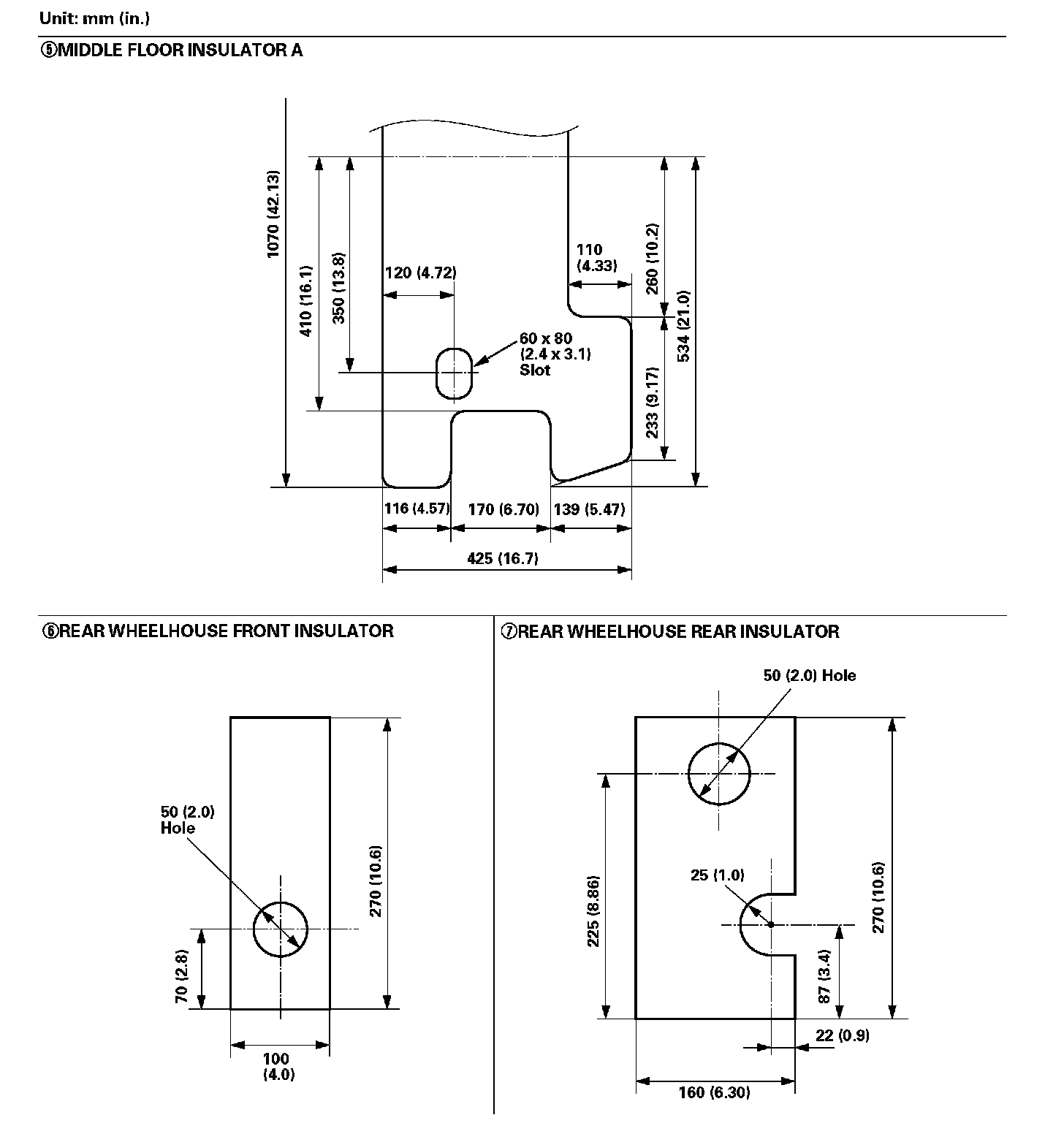
Insulator Size
Insulator Size